Skip to main content
Whitton Estate Gunning

Lot 1 Whitton Estate Gunning

$1,121,999 Lot 1, Whitton Estate Gunning NSW 2581
2000m2 308.7m2
icon 4
icon2
icon2
icon22.4m
icon15.4m

Standard Features

  • Includes Upgrade to our Southcoast Facade
  • Double glazing to all glass windows and sliding doors
  • Site Costs, including and up to 'M Class' Slab Design
  • Freestanding bath
  • 900mm quality Fisher & Paykel appliances
  • Concrete Sleeper Retaining Walls (up to 50m2)
  • Plain Concrete driveway allowance
  • Mellross Homes Electrical Pack including an additional 10 downlights and 10 extra double powerpoints
  • Optional upgrade options available for landscaping packages
  • Plus the Mellross Homes Standard Inclusions; incorporating items such as a Colorbond Roof, Motorised Sectional Garage Door and Remotes, 5,000L Rainwater Tank, Vinyl flooring to Living Areas and High Quality Carpet to remaining, Westal Windows and Sliding doors with keyed locks throughout, 3-Coat Paint System with an Exclusive Taubmans Paint Range, plus much, much more!

Description

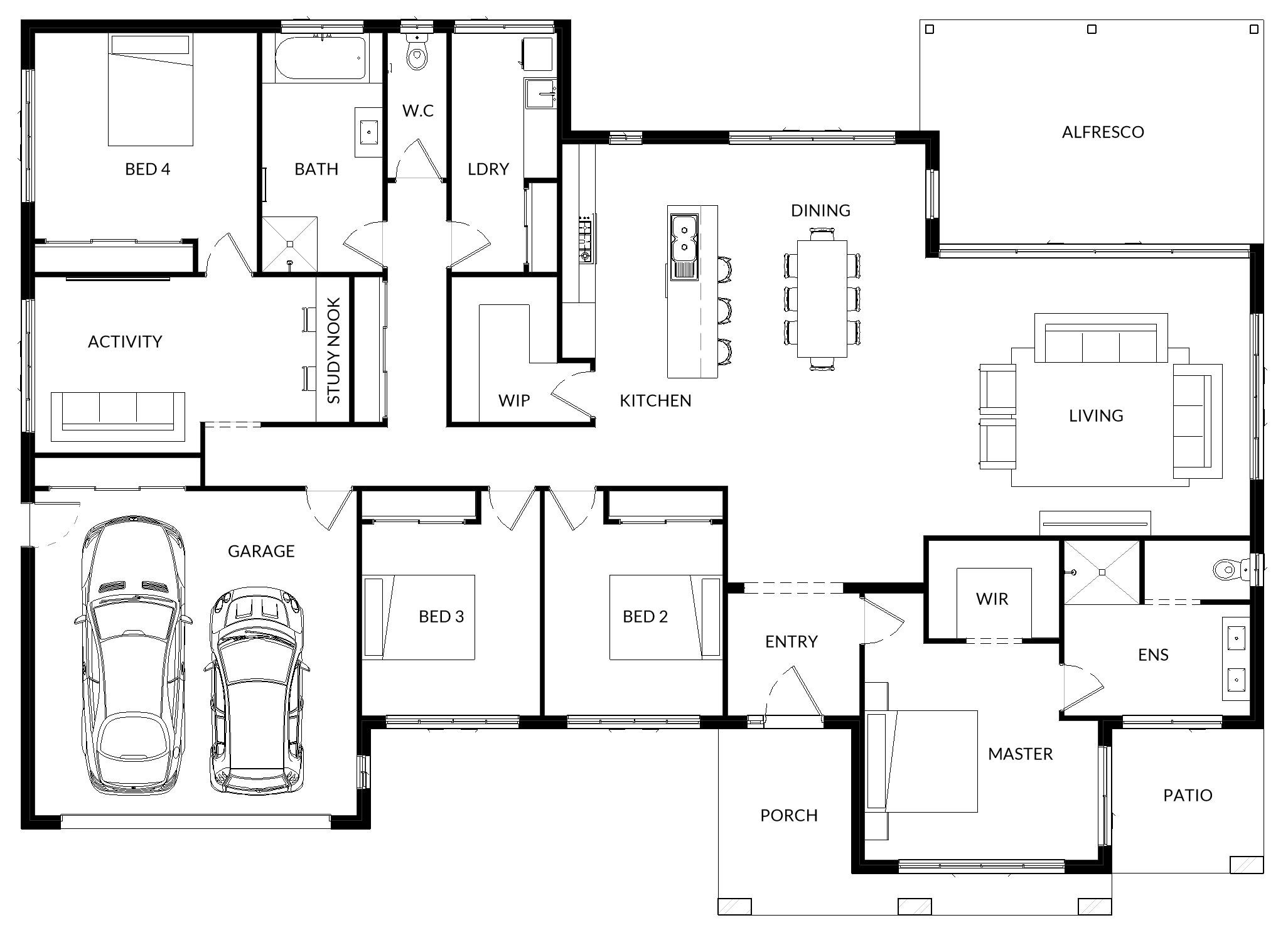
Our Lakewood design constructed in what is expected to be the most desirable and sought after community in Gunning, Whitton Estate!

Whitton Estate is just 45 minutes from Canberra CBD is all about a sense of Community, Belonging, Space & Quality which aligns perfectly with the beautiful Lakewood 309 design.

Featuring an enormous open Living area, a large Kitchen with WIP, and a Patio accessible via large stacker doors; this is the perfect Entertainer’s home. A Parents Retreat, complete with a large WIR, Ensuite, and its very own Outdoor area, leaves space for the kid’s end of the house which boasts a dedicated Activity area and Study Nook.

Wish to enquire about Lot 1 Whitton Estate, Gunning?

Fill out the form below and our team will get back to you with more information on this package

icon