Premier Collection: House & Land Packages in NSW
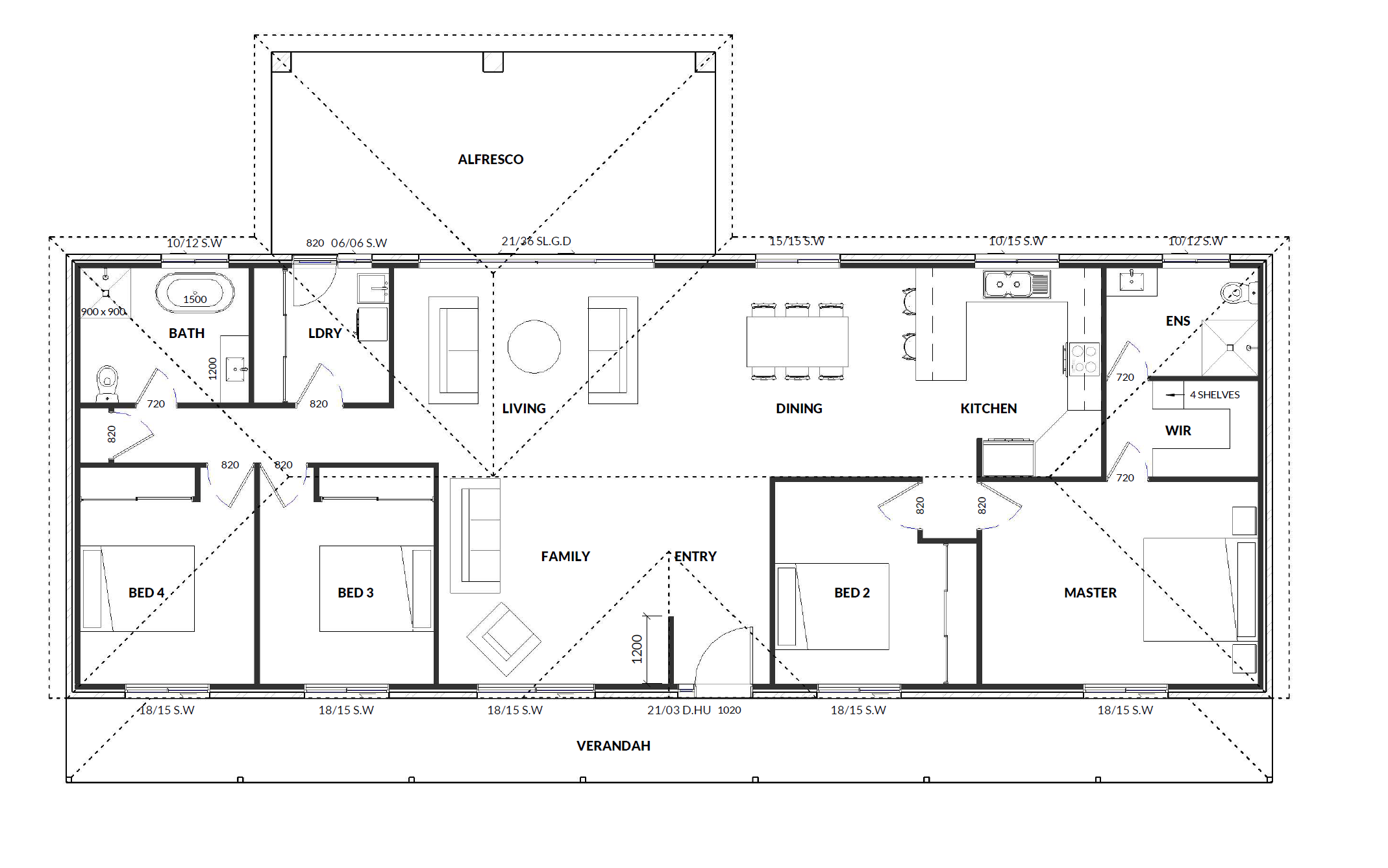
Wellington 230
Size: 230.1m2Standard Features
- Kitchen
- Open living
- Laundry
- Master with ensuite & walk in robe
- Alfresco
- Verandah
Description
At just under 22m wide the Wellington 230 packs a punch in providing generous living spaces, large bedrooms, a master suite with a large ensuite and walk-in robe as well as a sizeable alfresco. Open your new front door and enter your beautiful open living space and bask in the stunning natural light that floods through the back windows & doors. This home centres around generously sized entertainment areas, meaning you can play host to all your family and friends without feeling closed in. Head on out to the alfresco after dinner and enjoy each other’s company under the stars in the night air.


